AG9 IMMOBILIER  6-8 RUE BOULAN 33000 BORDEAUX  |  Contact : 06 78 45 23 04  |  Nous proposons des biens immobiliers à la vente en Gironde  |  

Trouvez le logement idéal

Localisation :

Type de bien :

Budget :

Surface habitable :

Équipements :

<< Précédent

L'HERBE : TERRAIN CONSTRUCTIBLE 2 593 m²

Réf : 170

Adresse :

33970 Lège-Cap-Ferret

Informations financières :

Prix 1 870 000 €

Détails :

Surface terrain 2 593 m²

RARE sur le secteur recherché de L'HERBE : Terrain constructible de 2 593 m² à proximité des espaces boisés protégés, des plages et des commerces.

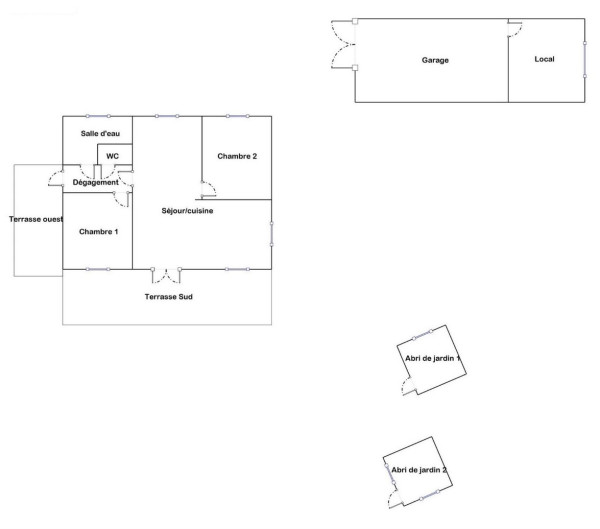
Dans un environnement préservé, entre soleil et ombrage, ce grand terrain arboré et viabilisé comporte un chalet T3 env. 50 m², 2 abris de jardin et un garage.

Situé à 10 mn à pied de la plage, ce terrain libre de constructeur vous offre une belle opportunité de construction et peut accueillir une villa de 337 m² d'emprise au sol maxi en R+1 avec piscine. 

Ni zone rouge, ni zone inondable.

Nous consulter. Dossiers sérieux uniquement.

Géolocalisation :

Ce bien vous intéresse ? Laissez votre message

Retour à la liste

Dernières annonces

T2 VENDU LIBRE BORDEAUX HISTORIQUE
Détail VENDU Prix : 220 000 €
Surface habitable : 45 m²
Équipements : Cuisine équipée
Détail
GOLF CAUDERAN : T3 lumineux et rénové
Détail VENDU Prix : 230 000 €
Surface habitable : 83 m²
Équipements : Cuisine aménagée, Parking(s)
Détail
SECTEUR NANSOUTY : GRAND T1, 32 M², AVEC BALCON
Détail VENDU Prix : 145 000 €
Surface habitable : 32 m²
Équipements : Balcon
Détail